Home
Contact
Admin
ȸ»ç¼Ò°³
Àλ縻
°³¿ä&¿¬Çõ
ÀÎÁõ¼
Á¶Á÷µµ
¿À½Ã´Â ±æ
Á¦Ç°¼Ò°³
CLEAN ROOM
±â±â, Àåºñ
¿¡¾î»þ¿ö¼Òµ¶±â
Ç׿ÂÇ×½À±â
Á¦½À±â ½Ã¼³
°ø±âÁ¶È±â ½Ã¼³
³Ãµ¿ÀåÄ¡, ºÎǰ
CHILLER(¹ÝµµÃ¼¿ë)
FILTER HOUSING
(SUS)
À¯Áöº¸¼ö °ü¸®
CLEAN ROOM ½Ã½ºÅÛ
CLEAN ROOM
½Ã½ºÅÛ
½Ã°ø»ç·Ê
½Ã°ø»ç·Ê
»ç¾÷ºÐ¾ß
»ç¾÷ºÐ¾ß
Àåºñº¸À¯ÇöȲ
°í°´Áö¿ø
°øÁö»çÇ×
Q/A
Á¦Ç°¼Ò°³
HANKUK Moonters CO.,Ltd
CLEAN ROOM ±â±â, Àåºñ
¿¡¾î»þ¿ö¼Òµ¶±â
Ç׿ÂÇ×½À±â
Á¦½À±â ½Ã¼³
°ø±âÁ¶È±â ½Ã¼³
³Ãµ¿ÀåÄ¡, ºÎǰ
CHILLER(¹ÝµµÃ¼¿ë)
FILTER HOUSING(SUS)
À¯Áöº¸¼ö °ü¸®
Á¦½À±â½Ã¼³
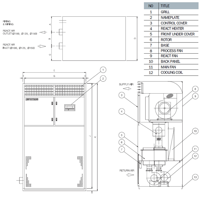
³Ã°¢Á¦½À±â¿Ü, ¼¼¶ó¹Í¼¶À¯ÁúÀÇ ½Ç¸®Ä«°ÖÀ» ÇÔħÇÑ Çã´ÏÄķΟ ±¸µ¿¹æ½ÄÀÇ °Ç½Ä Á¦½À±â°¡ ³Î¸® ¾²À̰í ÀÖÀ¸¸ç, Àü±âÀüÀÚ¤ý¿¬±¸¼Ò¤ýÅ©¸°·ë¤ýÁ¦Ã¶¤ýÁ¦¾à¤ý½Äǰ¤ýâ°í¤ý¼±¹Úȹ°º¸°ü¤ýµµÀå µîÀÇ 40%ÀÌÇÏ Á¦½ÀÁ¶°ÇÀÌ ÇÊ¿ä·ÎÇÑ Àå¼Ò¿¡¼ ³Î¸® ÀÌ¿ë.
°Ç½ÄÁ¦½À±â
¡Ø Ư¡
Á¦½ÀÈ¿°ú°¡ ¶Ù¾î ³³´Ï´Ù.
SSCR-M·ÎÅÍ¿¡ ÀÇÇØ »ó´ë½Àµµ 100%ÀÇ ¿ÜºÎ°ø±âµµ ½±°Ô 30%ÀÌÇÏÀÇ Àú½À»óÅ·Π¸¸µé¼ö ÀÖ´Â SYSTEMÀ» ±¸¼ºÇÒ ¼ö ÀÖ½À´Ï´Ù.
Á¶ÀÛÀÌ °£ÆíÇÕ´Ï´Ù.
·ÎÅÍ¿Í Àç»ýÀåÄ¡ ¹× ¼Ûdz±âÀÇ ÀÛµ¿¸¸À¸·Î ¿øÇÏ´Â Á¦½ÀÈ¿°ú¸¦ º¼ ¼ö ÀÖ½À´Ï´Ù.
¼¼Á¤ÀÛ¾÷ÀÌ ¿ëÀÌ ÇÕ´Ï´Ù.
Á¦½À±âÀÇ Àå±â°£ »ç¿ëÀ¸·Î ÀÎÇÑ ·ÎÅÍÀÇ Á¶ÇØÇö»ó ¶Ç´Â Äɸ®¿À¹öÇö»ó¿¡ ÀÇÇÑ Á¦½À¼º´É ÀúÇÏÀÇ ¿ì·Á°¡ ÀüÇô ¾øÀ¸¸ç, °£´ÜÈ÷ ¹°À̳ª °ø±â·Î ¼¼Á¤ÇÒ ¼ö ÀÖ½À´Ï´Ù.
¿Â¤ý½ÀµµÁ¦¾î°¡ ¿ëÀÌ ÇÕ´Ï´Ù.
Ä𷯸¦ ºÎÂøÇÒ °æ¿ì¿¡´Â ½Àµµ»Ó¸¸ ¾Æ´Ï¶ó ¿Âµµ±îÁöµµ ¼Õ½±°Ô Á¦¾î ÇÒ ¼ö ÀÖ½À´Ï´Ù.
SDU SERIES
SDU SERIES´Â AFTER COOLER°¡ ºÎÂøµÇ¾î ÀÖÀ¸¸ç, ¿É¼Ç»çÇ×À¸·Î AFTER HEATER¸¦ ºÎÂøÇÏ¿© Á¦½À»Ó¸¸ ¾Æ´Ï¶ó ¿Âµµ ¶ÇÇÑ ÀÏÁ¤ÇÏ°Ô À¯Áö½Ãų Çʿ䰡 ÀÖÀ» °æ¿ì¿¡ »ç¿ëµÇ´Â Á¦½ÀÀåÄ¡
¡Ø Ç¥ÁØ»ç¾ç
¡Ø ½Ç³»±â(Indoor-Type Machine)